Hopp til hovedinnhold

Bolighus fra Lende

Tre generasjoner har hatt dette huset som sitt hjem. I den siste generasjonen var de sju søsken, som med sine historier speiler jærbuenes kulturkontakt, både med andre deler av landet, og med atskillig mer fjerntliggende områder.

Innredningen i huset er satt til 1907.

  • 1/1
  • A. B. Wilse | Norsk Folkemuseum

Jæren

Jæren er et lavtliggende og flatt kystområde sør for Boknafjorden i Rogaland. Karakteristisk for landskapet er lyngheiene, torvmyrene, storsteinet jord ryddet til jordbruksarealer, kilometervis med steingjerder, strender med marehalm og flyvesand, og naturskapte voller av rullestein som møter brenningene fra havet.

Før mekaniseringen i jordbruket var spaden jærbøndenes viktigste og omtrent eneste jordbruksredskap. Å spa et mindre stykke åker kunne ta flere voksne menn en arbeidsdag. Det tungvinte spadebruket og de mange små åkerlappene som hørte til hver gård gjorde det vanskelig å utnytte jordbruksressursene, til tross for et mildt og fuktig klima og lang jordbrukssesong. 

I tillegg til åkerbruket holdt bøndene storfe og sauer. Et aktivt fiske bidro til utstrakt handel og kontakt med landene rundt Nordsjøen. Jærbanen åpnet for togtrafikk mellom Stavanger og Egersund i 1878.

Jærbuene har ofte vært beskrevet som hardtarbeidende bønder under karrige forhold, ofte med en sterk forankring i bedehuskulturen. Men de var også et folk som utnyttet de mulighetene kysten ga, og hvor havet førte dem over store avstander og landegrenser. Kulturen på Jæren var derfor både preget av lokale naturforhold og forutsetninger, men også av impulser og erfaringer som jærbuene tok med seg tilbake fra den store verden.

  • De var sju søsken i den siste flokken som vokste opp i huset på Lende. På fotografiet er fire av dem avbildet i Trondheim rundt 1915. Ukjent fotograf, I privat eie Ukjent fotograf | I privat eie

Tre generasjoner på Lende

I dette huset fra Lende på Jæren har tre generasjoner fra samme familie levd sine liv. To ektepar har hatt det som ramme for hverdag, arbeid, høytid og familieliv. 15 barn er født i huset. De fleste av dem vokste opp her og fant nattero i vogga og slagbenken før de ble gamle nok til å sove på stoveloftet. I dette huset har tusenvis av måltider blitt inntatt – både hverdagens grøt og sild og høytidens smaleføter og lefser.

Huset har rommet latter og kjærlighet, konsentrasjon og arbeid, drømmer og lengsel, ambisjoner, kunnskap, sykdom, sorg og savn. Noen av barna som ble født her døde før de hadde fylt året. Flere voksne trakk sine siste åndedrag her.

Fire gikk inn i alderdommen i huset. To av dem flyttet inn på stovekammerset og så en ny generasjon ta over gårdsbruket. En tredje opplevde at barneflokken fikk nye muligheter for utdanning og arbeid. Den fjerde var husets siste beboer, som hadde levd storparten av livet i huset og visste at det skulle på museum i Oslo etter hans død.

  • 1/1
    Christian André Strand | Norsk Folkemuseum
  • Stua fra Lende på Jæren, nå på Norsk Folkemuseum, som bygning nummer 091.
    Huset fra Lende før flutting til Norsk Folkemuseum. Bildet er hentet fra digitaltmuseum.org

Om huset

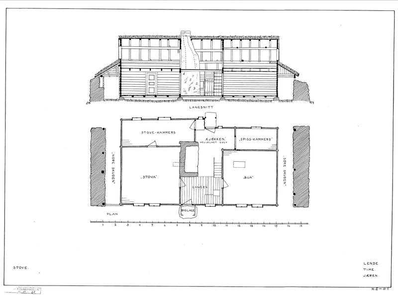
Huset fra Lende er et for sin tid karakteristisk bolighus – et forholdsvis lite, hvitmalt hus, en og en halv etasje høyt, som hviler på et lavt gråsteinsfundament. Taket er tekket med torv. De to sideskutene ble brukt til lagring av torv til brensel.

Kledningen er liggende panel, såkalt vestlandspanel. I følge lokale tømmermenn var denne typen panel praktisk når de nederste bordene måtte byttes ut på grunn av råteskader. På fasadeveggen r vinduene sammenkoblet to og to, og som alminnelig var, er de ikke symmetrisk plassert på hver side av inngangsdøra. Foran døra er det et lite bislag.

Innvendig har huset en symmetrisk grunnplan. Midtpartiet består av en gang, og bak den kjøkkenet, med tilstøtende spiskammers. I flukt med stua ligger et stuekammers.

Som skikken var har huset kun én ovn til oppvarming, nemlig en bileggerovn i stua. Var det trangt om sengeplasser, kunne både barn og tjenestefolk sove på loftet.

Bolighus fra Lende

  • Fra: Time, Jæren
  • Bygget: 1845
  • Oppført på museet: 1939
  • Bygningsnummer: 091
Museum24:Portal - 2025.09.08
Grunnstilsett-versjon: 2